Stilvoll sanierte ETW mit Aufzug & 2 Balkonen im 1. OG – Wilhelmstadt nahe Pichelssee
Beschreibung:
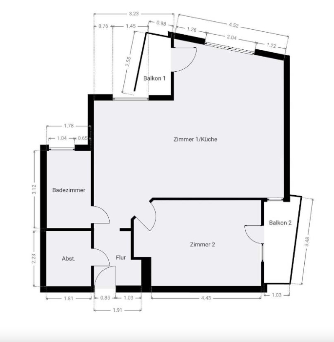
Moderne, hochwertig sanierte 2,5 Zimmer-Wohnung in ruhiger, aber dennoch gut angebundener Lage nahe dem Pichelssee – ideal für Singles, Paare oder als Investition im Bereich der möblierten Vermietung. Mit einer Wohnfläche von ca. 75 m2 bietet die Wohnung einen offenen Grundriss, der für eine optimale Raumausnutzung sorgt. Die offene Wohnküche mit angrenzendem Balkon und Theke lädt zum Verweilen ein. Ein hochwertiges Wannenbad mit separater Dusche und ein großzügiges Schlafzimmer mit Balkon sowie maßgefertigte Einbauschränke bieten höchsten Komfort.Das lichtdurchflutete Wohnzimmer mit großer Fensterfront und Balkon bietet einen Blick ins Grüne und auf die Scharfe Lanke. Der nach Südosten ausgerichtete Balkon sorgt für eine helle, angenehme Atmosphäre. Die individuell angefertigten Möbel und der zusätzliche Stauraum durch maßgeschneiderte Lösungen ergänzen den modernen Charakter der Wohnung.
Die Wohnung wurde zwischen 2005 und 2007 kernsaniert. Sie überzeugt mit neuen Holzfenstern, einem Designerparkettboden sowie einer modernen Elektrik. Das Badezimmer verfügt über eine Fußbodenheizung und einen neuen Holzboden im Bootsdeck-Design. Ein kleiner Raum im hinteren Bereich eignet sich ideal als Homeoffice.
Zur Wohnung gehören ein ca. 3 m2 großer Kellerraum sowie die Nutzung eines Fahrradabstellraums und einer Waschküche. Das gepflegte Gebäude aus dem Jahr 1962 wird über eine Ölheizung aus 1992 beheizt, und die Fassade wurde 2023 teilweise erneuert. Die nächsten Sanierungsarbeiten an der Fassade sind für 2025 geplant. Das monatliche Hausgeld beträgt 429 e.
Eine attraktive Möglichkeit für Investoren oder Selbstnutzer, die eine hochwertig sanierte Wohnung in einer ruhigen und dennoch gut angebundenen Lage suchen.
Kontaktieren Sie uns für weitere Informationen oder eine Besichtigung!
Lagebeschreibung:
Die Wohnung befindet sich in einer begehrten und ruhigen Wohngegend nahe dem Pichelssee.In unmittelbarer Nähe finden sich zahlreiche Freizeitmöglichkeiten am Pichelssee sowie Grünflächen für Erholung und sportliche Aktivitäten. Lokale Einkaufsmöglichkeiten, Restaurants und Cafés sind bequem zu Fuß erreichbar und runden das attraktive Wohnumfeld ab.
Die Lage bietet alles, was man für ein komfortables und gut angebundenes Leben in Berlin benötigt – eine ideale Wahl für Selbstnutzer, Investoren oder Mieter.
Ausstattung:
- Balkon
- Warmwasser enthalten
Energieausweis:
- A+
- A
- B
- C
- D
- E
- F
- G
- H
- Baujahr:
- 1962
- Endenergieverbrauch:
- 105,75 kWh/(m²a)
- Energieausweis:
- Verbrauchsausweis
- Energieeffizienzklasse:
- D
- Baujahr lt. Energieausweis:
- 1992
- wesentlicher Energieträger:
- Öl
Ausstattungsbeschreibung:
- Hochwertige Kernsanierung der Wohnung 2005-2007 (Gebäude ist von 1962) - Neues Wannenbad mit Dusche- Geölter Massivholzboden (Thermobuche) mit Fußbodenheizung
- Komplett neue Elektrik (5-adrig / Bus-fähig) inkl. eigener Unterverteilung
- Glas-Schalterprogramm von BuschJaeger
- Neue Trockenbaudecken mit LED-Einbauspots und umlaufenden Stuckleisten
- Integrierte Leinwand in der Wohnzimmerdecke
- Doppelverglaste Holzfenster mit Schallschutzglas (10/18/4, Ug=1,2 W/m2, 38dB)
- Massivholzparkettboden (14mm Doussie, stumpfmatt lackiert) im Fischgrät-Verband - 4mm starker Designer-Korkboden im Schlafzimmer
- Zimmertüren aus querfurnierter Eiche, dunkel gebeizt/lackiert, stumpf einschlagend mit verdeckt liegenden Tectus-Bändern und Edelstahl-Beschlägen
- Moderne Einbauküche mit Lackfronten und Akazien-Massivholz-Arbeitsplatte
- Hochwertige Einbaugeräte von Miele, Bosch & Liebherr
- Induktionskochfeld
- Maßgefertigte Heizkörperverkleidung mit Stauraum im Wohnzimmer - Einbauschrank im Schlafzimmer
- Flurgarderobenschrank mit raumhohen Schiebetüren
- Hausgeld 428,66 €
Sonstige Angaben:
Alle Daten in diesem Exposé beruhen auf Angaben des Verkäufers. Die Objektangaben wurden mit großer Sorgfalt zusammengestellt. Für die Richtigkeit des Verkäufer-, Anbieter- und Angebotsangaben können wir keine Haftung übernehmen.Die zu zahlende Käuferprovision beträgt 3,57%, inklusive der ges. Mehrwertsteuer und ist mit Unterzeichnung des notariellen Kaufvertrages zur Zahlung fällig. Es wird dem Makler erlaubt, sowohl für den Verkäufer als auch für den Käufer eine provisionspflichtige Tätigkeit zu entfalten (sog. Makler Doppeltätigkeit). Irrtümer bleiben vorbehalten. Eine Weitergabe an Dritte ist an unsere ausdrückliche Zustimmung gebunden und unterbindet nicht den Provisionsanspruch bei Zustandekommen eines Vertrages.
Sie wollen mehr erfahren?
Wenn Sie uns eine Nachricht über das Kontaktformular senden, melden wir uns schnellstmöglich bei Ihnen:













