Helle Maisonette mit eigenem Garten, Terrassen & viel Platz für Ihre Wohnideen - provisionsfrei!
Beschreibung:
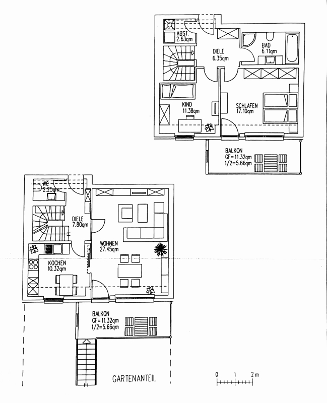
Willkommen in Ihrem neuen Zuhause – einer besonderen Maisonette-Wohnung, die sich über Hochparterre und erstes Obergeschoss eines gepflegten Mehrfamilienhauses erstreckt. Im Aufgang befinden sich nur sieben Parteien – ruhig und persönlich. Das 1981 errichtete Gebäude wurde 2012 im Zuge einer umfassenden Kernsanierung und nach den Vorgaben der Energieeinsparverordnung 2009 (EnEv) modernisiert und technisch auf den neusten Stand gebracht – inklusive Elektrik, Heizung und Leitungen. Bereits beim Betreten spüren Sie: Diese Wohnung ist nicht alltäglich.Im Hochparterre empfängt Sie ein heller Eingangsbereich mit Gäste-WC. Von hier aus gelangen Sie direkt in das Herzstück der Wohnung – das großzügige Wohnzimmer mit Essbereich von ca. 28 m², das sich bei Bedarf leicht in ein Wohnzimmer und ein zusätzliches Zimmer mit separatem Zugang, z.B. für ein Homeoffice, aufteilen lässt.
Große Fenster lassen Licht herein und führen auf die Terrasse, auf der man die Sonne dank der Ostausrichtung genießen kann. Von hier betreten Sie Ihren privaten Garten – eine grüne Oase mit ca. 240 m² Sondernutzungsrecht, ideal zum Spielen, Gärtnern oder einfach zum Durchatmen.
Die Küche überzeugt durch ihren praktischen Schnitt und lässt Raum für Ihre eigenen Gestaltungsideen. Eine elegante Innentreppe mit Parkettstufen führt ins Obergeschoss mit zwei ruhigen Schlafzimmern, einem Badezimmer mit Wanne und Dusche sowie einem Hauswirtschaftsraum.
Besonders clever: Beide Etagen verfügen über eigene Wohnungstüren im Treppenhaus – ideal für getrennte Nutzungen oder Mehrgenerationenwohnen.
Zwei Terrassen (je ca. 11 m²) mit Blick ins Grüne, ein eigener Stellplatz im Innenhof sowie ein ca. 10 m² großer Kellerraum runden das Angebot ab.
Diese Immobilie bietet Raum für Ihre persönlichen Wohnideen – perfekt für Familien mit Sinn für Stil, Ruhe und Natur. Sie befindet sich in einem insgesamt gepflegten Zustand; kleinere Renovierungsarbeiten nach individuellen Vorstellungen sind jedoch möglich.
Zögern Sie nicht und vereinbaren Sie noch heute einen Besichtigungstermin, um sich selbst von den Vorzügen dieser Wohnung zu überzeugen.
Lagebeschreibung:
Friedrichsfelde, wo sich die Wohnung befindet, ist ein Ortsteil im Berliner Bezirk Lichtenberg. Er ist gekennzeichnet durch seine historische Bebauung im historischen Ortskern. Bekannt ist der Ortsteil insbesondere durch den Tierpark Berlin mit dem Schloss Friedrichsfelde.Die Lage bietet genau das, was Familien suchen: Ruhe, Sicherheit, grüne Umgebung und eine Infrastruktur, die den Alltag leicht und lebenswert macht.
Ein Zuhause, in dem sich Familien wohlfühlen: Die Wohnung liegt in einer besonders ruhigen, verkehrsarmen Nebenstraße – fernab vom Durchgangsverkehr, sodass Kinder sicher spielen und Eltern entspannt ankommen können.
Nur 7 Gehminuten entfernt lädt der weitläufige Tierpark Berlin zu gemeinsamen Erlebnissen in der Natur ein – ob Tierbeobachtungen, Picknick oder einfach ein Ausflug ins Grüne.
Alles, was Familien im Alltag brauchen, ist in direkter Nähe: Direkt neben dem Haus befindet sich ein Netto-Supermarkt, weitere Märkte wie Aldi und Rewe sind ebenfalls bequem zu Fuß erreichbar. Der nächste Kindergarten ist nur 650 Meter entfernt, Schulen und Gymnasien befinden sich in unmittelbarer Nähe.
Auch die Anbindung an den öffentlichen Nahverkehr ist ideal: Die U-Bahn Friedrichsfelde (Linie U5) erreichen Sie in nur 7 Minuten zu Fuß. Von dort gelangen Sie ohne Umstieg in ca. 30 Minuten direkt zu beliebten kulturellen Highlights der Hauptstadt wie dem Museumsinsel, dem Brandenburger Tor oder dem Potsdamer Platz. Den nächsten Fernbahnhof – den Ostbahnhof – erreichen Sie in rund 25 Minuten. Zusätzlich Tram- und Bushaltestellen in 3–4 Min. zu Fuß.
Highlights für Familien
- Ruhige, familienfreundliche Lage in verkehrsberuhigter Straße
- Kita, Grundschule & Gymnasium im Umkreis von 1 km
- Nur 7 Minuten zu Fuß zum beliebten Tierpark Berlin
- Großer Privatgarten – ideal zum Spielen & Entspannen
- Zwei separate Eingänge – flexibel nutzbar für Eltern & Kinder
- Nah an Spielplätzen, Supermärkten & ÖPNV
Ausstattung:
- Terrasse
- Warmwasser enthalten
- Personenaufzug
Energieausweis:
- A+
- A
- B
- C
- D
- E
- F
- G
- H
- Baujahr:
- 1981
- Endenergieverbrauch:
- 70,3 kWh/(m²a)
- Energieausweis:
- Verbrauchsausweis
- Energieeffizienzklasse:
- B
- Energieausweis gültig bis:
- 21.12.2030
- Baujahr lt. Energieausweis:
- 2010
- wesentlicher Energieträger:
- Fernwärme
Ausstattungsbeschreibung:
- Maisonette über Hochparterre & 1. OG- Zwei Terrassen (je ca. 11 m²) mit direktem Zugang zum Garten und Blick ins Grüne
- Geräumiges Wohnzimmer (ca. 28 m²) mit der Möglichkeit, ein zusätzliches Zimmer abzutrennen
- Küche
- Zwei Schlafzimmer
- Bad mit Wanne & Dusche
- Separates Gäste-WC
- Abstell- und Technikraum
- Eigener Kellerraum (ca. 10 m²)
Sonstige Angaben:
- Das Gebäude wurde 1981 errichtet und im Jahr 2012 im Rahmen einer umfassenden Kernsanierung nahezu vollständig neu aufgebaut (Technik, Leitungen, Heizung, Fassade, Fenster etc.).- Die Wohnung erstreckt sich über zwei Etagen (Hochparterre & 1. OG) mit jeweils separatem Eingang.
- Energieausweis: Verbrauchsausweis, Klasse B, 70,3 kWh/(m²*a), gültig bis 31.12.2030
- Sondernutzungsrecht am Gartenanteil (ca. 240 m²)
- Der Pkw-Stellplatz ist im Kaufpreis enthalten
- Laminatboden, Innentreppe mit Parkettholz-Stufen
- Aufzug & barrierefreier Zugang mit Hebebühne für Rollstuhlfahrer
Stand der Instandhaltungsrücklage zum 30.05.2025:
437.338,79 €, Anteil der Wohnung: 9.193,31 €
Hausgeld lt. Wirtschaftsplan 2025: 431,77 €7 / Monat
Provision:
Die Immobilie wird provisionsfrei für Käufer angeboten. Es fällt lediglich eine Innenprovision an, die ausschließlich vom Verkäufer getragen wird. Für den Käufer entstehen keine Maklerkosten.
HAFTUNG: Die in diesem Exposé gemachten Aussagen beruhen auf Auskünften Dritter. Die Grundrisse und die Flächenangaben des Auftraggebers zur Wohn- bzw. Nutzfläche sind unverbindlich. Wir übernehmen daher keine Haftung für die hier gemachten Angaben, insbesondere für Preise, Flächenangaben, Grundrisse oder Lageskizzen. Dieses Angebot ist freibleibend, ein Zwischenkauf bleibt vorbehalten. Bei entsprechend hoher Nachfrage behalten wir uns ein Angebotsverfahren vor, sodass es auch zu einem höheren Verkaufspreis kommen kann. Wir sind auch für den Eigentümer provisionspflichtig tätig.
Sie wollen mehr erfahren?
Wenn Sie uns eine Nachricht über das Kontaktformular senden, melden wir uns schnellstmöglich bei Ihnen:














